Aukce pozemku 48 604 m2 Praha - Miškovice

Praha-Čakovice,
35 000 000 Kč
Nejnižší podání

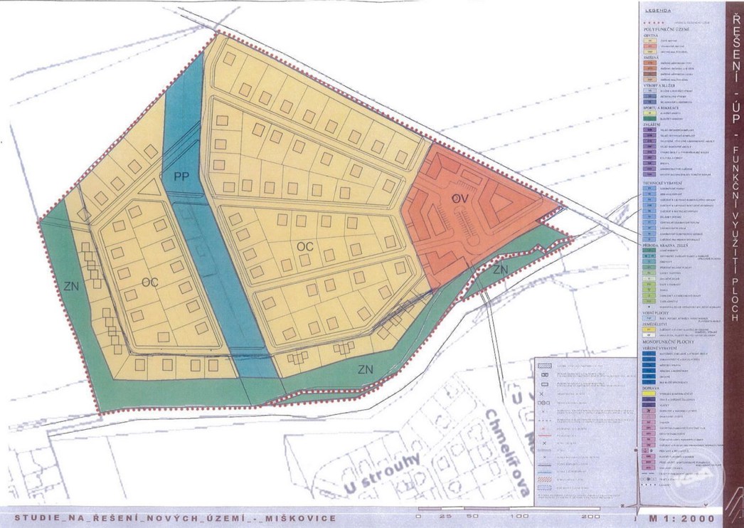
Aukce pozemku v Praze, kú. Miškovice o celkové výměře 48 604 m2, které jsou součástí projektu na změnu Z 2901/00 na čistě obytné území, která nebyla 3.6.2014 schválena. Nyní probíhá příprava nové žádosti o změnu územního plánu. Inženýrské sítě (elektřina, voda, kanalizace) jsou v dosahu, přístupové komunikace k pozemkům jsou obecní – zpevněná v šířce jednoho jízdního pruhu.

Nabídka
Nabídka
Číslo zakázkyKP011471
Druh zakázkyDražba
Stav zakázkyZrealizováno
Aktualizace31.05.2019
Dražba
Dražba
Druh dražbyAukce
Datum dražby 20. 06. 2019  10:00
Místo dražby www.jrdrazby.cz
Termín první prohlídky 20. 06. 2019  9:00
Termín druhé prohlídky 14. 05. 2019  9:00
Vyvolávací cena 35 000 000 Kč
Znalecký posudek 48 604 000 Kč
Minimální příhoz 100 000 Kč
Jistina 500 000 Kč
Parametry
Parametry
Nemovitost
Využití z hlediska ÚPZemědelství
Forma vlastnictvíOsobní
Dopravní dostupnostMHD, Auto
KomunikaceAno
Plochy
Plocha parcely 48 604 m2
Inženýrské Sítě
Elektřina na pozemkuNa hranici
VodaVodovod
KanalizaceMěstská
PlynNa hranici
Zobrazit na mapě
Zobrazit na mapě
Cena
Cena
35 000 000 Kč
Nejnižší podání

Máte dotaz? Napište mi

Vaše osobní údaje využijeme pouze za účelem komunikace o zaslané nabídce. Nebudeme vám zasílat newsletter ani vaše údaje nepředáme třetím stranám.
Více o ochraně osobních údajů zde.

zrušit

Nenašli jsme žádné výsledky

Vámi zadaný výraz neodpovídá žádný záznam. Zkuste pozměnit svůj hledaný výraz.