Aukce domu 7+2 543 m2 s pozemkem 13 789 m2 a výhledem do údolí

Příbram, Nalžovice, Chlum
11 099 900 Kč
Nejnižší podání

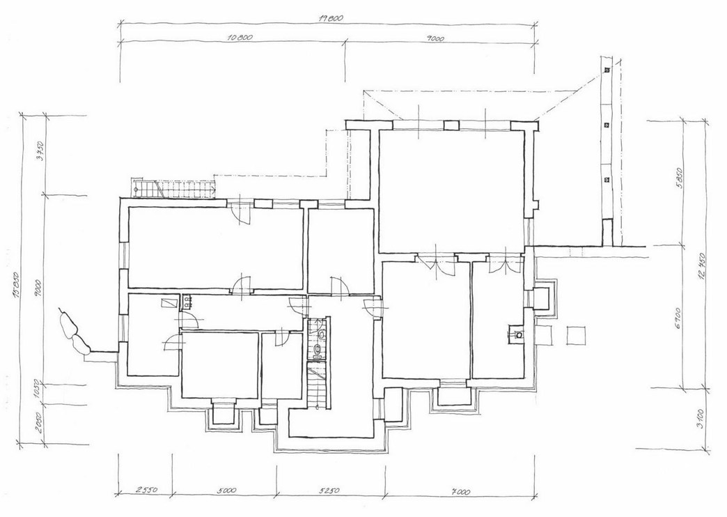
Aukce velikého dvougeneračního domu 7+2 s užitnou plochou 543 m2 v Chlumu, Nalžovice. Dům byl postavený v roce 2004 a má tři nadzemní podlaží. Pozemky k domu mají výměru 13 789 m2, kdy oplocená zahrada má výměru cca 10 104 m2 a zbytek je louka s lesem o výměře 3 685 m2. Dům je ihned volný k nastěhování.

Dům má tyto dispozice:
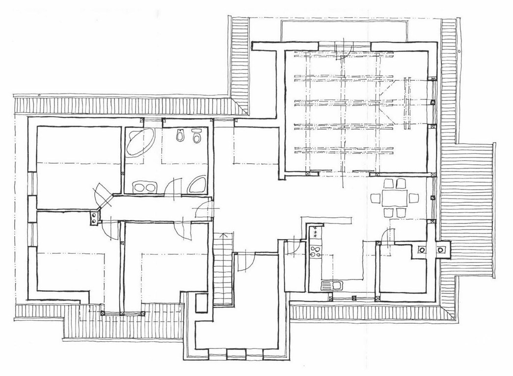
Přízemí: Společenská místnost s krbem a vstupem na terasu, pokoj pro hosty se samostatným WC, samostatná bytová jednotka 2+kk
Podkroví: Byt 5+1: Obývací pokoj, kuchyň s jídelnou, dva dětské pokoje, ložnice, pokoj – šatna, koupelna s WC, pracovna.
Suterén: kuchyň s přípravnou, sklad, dílna, kotelna, uhelna, garáž pro dvě auta.

Dům je možné rozdělit na 4 až 6 samostatných apartmánů, nebo upravit na penzion.

Parkovat je možné v domě, kde jsou dvě místa a dále je zde dalších 8 parkovacích míst. Další dvě garáže jsou u bazénu.

Celá zahrada je oplocena zděným plotem a je mírně svažitá. Naleznete zde kaskádu umělých jezírek s lekníny a okrasné dřeviny.

V západní části zahrady je vybudovaný veliký bazén s terasou, pod kterou se nacházejí další tři garáž, pro dvě auta a zahradní techniku. Bazén má rozměry 12,5 x 5,5 m s přípravou pro roletu.

Náklady na provoz domu jsou 4 000 Kč za elektřinu a cca 1,1 tuny uhlí na rok.

V obci Nalžovice je základní občanskou vybavenost, tedy obchod, pošta, mateřská a základní škola.

Veškerá omezení zapsaná v katastru nemovitostí prodejem z insolvence zanikají, možno financovat předhypotečním úvěrem, který vám vyřídíme.

Nabídka
Nabídka
Číslo zakázkyKD011806
Druh zakázkyDražba
Stav zakázkyZrealizováno
Aktualizace21.04.2023
Dražba
Dražba
Druh dražbyAukce
Datum dražby 28. 03. 2023  11:00
Místo dražby www.exdrazby.cz
Termín první prohlídky 08. 03. 2023  10:00
Termín druhé prohlídky 15. 03. 2023  16:00
Vyvolávací cena 11 099 900 Kč
Znalecký posudek 15 857 000 Kč
Minimální příhoz 10 000 Kč
Jistina 500 000 Kč
Parametry
Parametry
Nemovitost
Velikost bytu 7+2 , 543 m2
Konstrukce domuCihla
Stav nemovitostiVelmi dobrý
Forma vlastnictvíOsobní
TopeníÚstřední palivové
ParkováníGaráž, Venkovní veřejné
Počet parkovacích míst4
PENB třídaG - Mimořádně nehospodárná
Plochy
Užitná plocha 543 m2
Obytná plocha 492 m2
Zastavěná plocha 226 m2
Plocha parcely 13 789 m2
Inženýrské Sítě
Elektřina230/400 V
VodaVlastní studna
KanalizaceČistička
Zobrazit na mapě
Zobrazit na mapě
Cena
Cena
11 099 900 Kč
Nejnižší podání

Máte dotaz? Napište mi

Vaše osobní údaje využijeme pouze za účelem komunikace o zaslané nabídce. Nebudeme vám zasílat newsletter ani vaše údaje nepředáme třetím stranám.
Více o ochraně osobních údajů zde.

zrušit

Nenašli jsme žádné výsledky

Vámi zadaný výraz neodpovídá žádný záznam. Zkuste pozměnit svůj hledaný výraz.