Aukce barokního zámku Krnsko okr. Mladá Boleslav s anglickým parkem 4 ha

Mladá Boleslav, Krnsko
15 700 000 Kč
Nejnižší podání

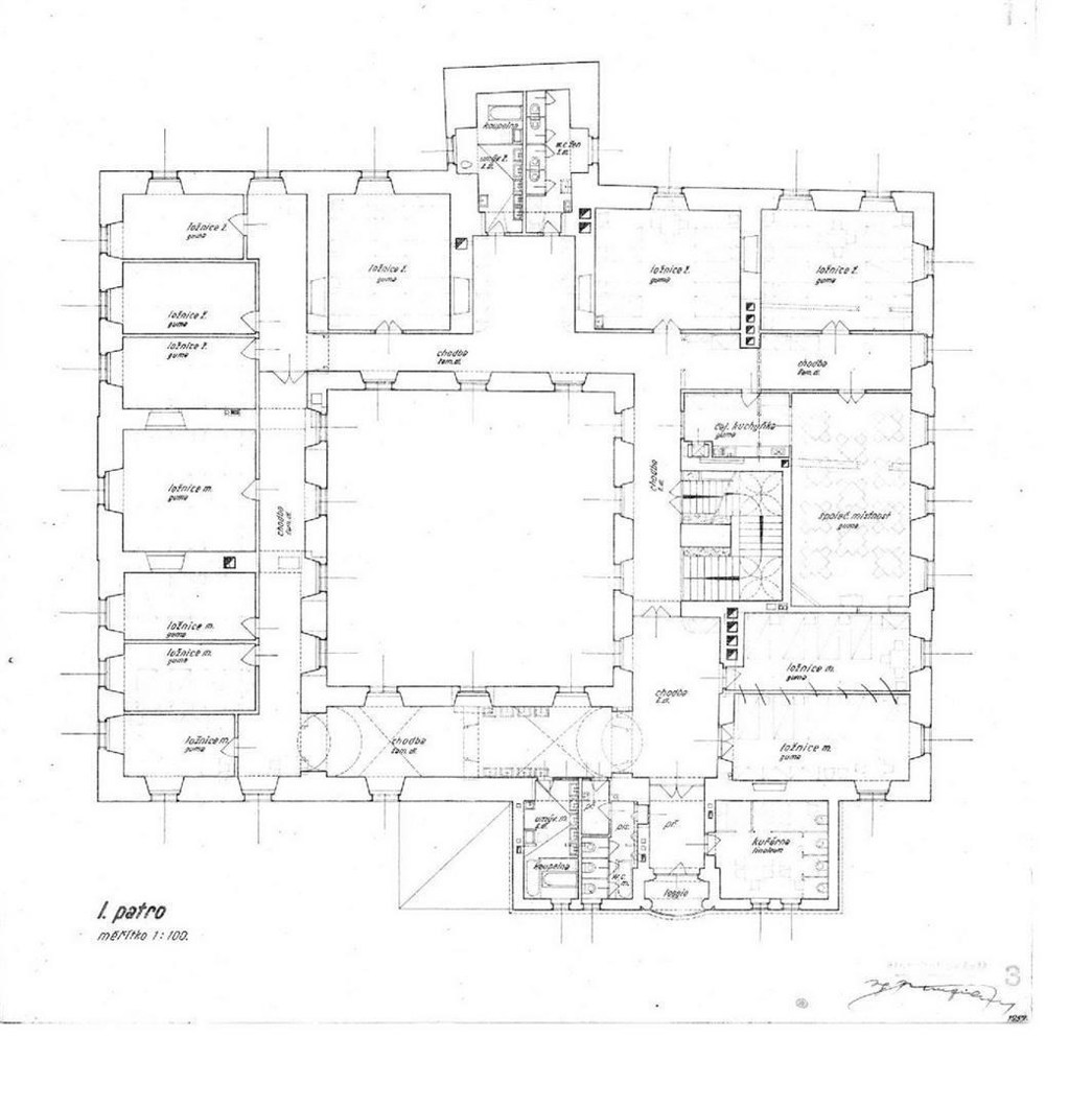
Zámek je čtyřkřídlá dvoupatrová budova, zčásti podsklepená, s vnitřním čtvercovým dvorem. Na severním barokním křídle je ve středu rizalitu polokruhový portál, nad nímž vystupuje čtyřboká věž s cibulovitou bání. Na třech stranách menšího nádvoří se zachovaly renesanční arkády na pilířích s obytným ochozem, který propojuje všechny místnosti zámku s centrálním schodištěm umístěným v jižním křídle. V přízemí se nachází zhruba 11 místností převážně zaklenutých, původně zde byla umístěna kuchyně, jídelna a pobytové místnosti. V patře je 13 obytných místností se společným sociálním zázemím. V krovu se nachází ještě 3 pobytové místnosti a umývárna vestavěné do sedlové střechy jižního průčelí, zbytek krovu je nevyužitá půda. Jihovýchodní část objektu je podsklepená, ze zahrady přístupná z terénu. Západním směrem od zámecké budovy se rozprostírá bývalý anglický park o rozloze cca 4 ha, zřízený na místě zasypaných příkopů bývalého opevnění tvrze. Na východní straně zámku byla v poslední době obnovena původní zámecká nádrž. K zámku vedou dvě cesty – dnes je nejvíce používaná brána přístupná nejkratší cestou po místní komunikaci kolem rybníka ze středu obce. Hlavní brána je situovaná v ose hlavního vstupu do zámku a po stranách je zdůrazněna dvojicí barokních soch. Stav předmětu aukce odpovídá stáří a zhoršené údržbě

Nabídka
Nabídka
Číslo zakázkyKD011456
Druh zakázkyDražba
Stav zakázkyZrealizováno
Aktualizace18.12.2018
Dražba
Dražba
Druh dražbyAukce
Datum dražby 18. 12. 2018  11:00
Místo dražby www.jrdrazby.cz
Termín první prohlídky 05. 12. 2018  10:00
Termín druhé prohlídky 13. 12. 2018  10:00
Vyvolávací cena 15 700 000 Kč
Znalecký posudek 17 000 000 Kč
Minimální příhoz 100 000 Kč
Jistina 500 000 Kč
Parametry
Parametry
Nemovitost
Velikost bytu Větší než 9+2 , 1 878 m2
Konstrukce domuSmíšená
Stav nemovitostiDobrý
Forma vlastnictvíOsobní
TopeníLokální palivové
ParkováníVenkovní vyhrazené, Kryté stání
Infrastruktura v okolíMístní úřad
Dopravní dostupnostAuto
PENB třídaG - Mimořádně nehospodárná
Plochy
Užitná plocha 1 878 m2
Obytná plocha 1 000 m2
Zastavěná plocha 658 m2
Plocha parcely 38 339 m2
Terasa 50 m2
Inženýrské Sítě
Elektřina230/400 V
VodaVlastní studna
KanalizaceSeptik
Zobrazit na mapě
Zobrazit na mapě
Cena
Cena
15 700 000 Kč
Nejnižší podání

Máte dotaz? Napište mi

Vaše osobní údaje využijeme pouze za účelem komunikace o zaslané nabídce. Nebudeme vám zasílat newsletter ani vaše údaje nepředáme třetím stranám.
Více o ochraně osobních údajů zde.

zrušit

Nenašli jsme žádné výsledky

Vámi zadaný výraz neodpovídá žádný záznam. Zkuste pozměnit svůj hledaný výraz.