Smíchov, Praha 5, prodej bytu 2+kk/T, 51,3 m2 s terasou a výhledem na Prahu

Praha 5, Smíchov, ul. Holečkova
Info v RK

Činžovní dům z 19. století se nachází v rezidenční čtvrti Hřebenky v městské části Praha 5. Její exkluzivní poloha uspokojí nejen milovníky městského způsobu života. Společnost KOVA Reality, specialista na Prahu 5, pro Vás připravila k prodeji v šesti nadzemních podlažích celkem 19 bytových jednotek, obchod se vstupem z ulice, dvě samostatné garáže. V podzemních podlažích domu je umístěno dostatečné množství praktických sklepních prostor. Byty jsou dispozičně řešené jako 1+kk až 3+1 s výměrami od 35 do 83 m2, přičemž k bytům v nejvyšším patře patří veliké terasy s nádherným výhledem. Většina bytů prošla rekonstrukcí, přičemž zůstaly zachovány původní prvky, dveře, parkety. Orientace domu poskytuje z některých bytů jedinečný výhledna Vyšehrad, Pankrác, Barrandov a Prokopské údolí.

Nabídka
Nabídka
Číslo zakázkyKB009838
Druh zakázkyProdej
Stav zakázkyZrealizováno
Aktualizace24.11.2017
Parametry
Parametry
Nemovitost
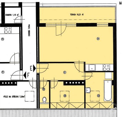
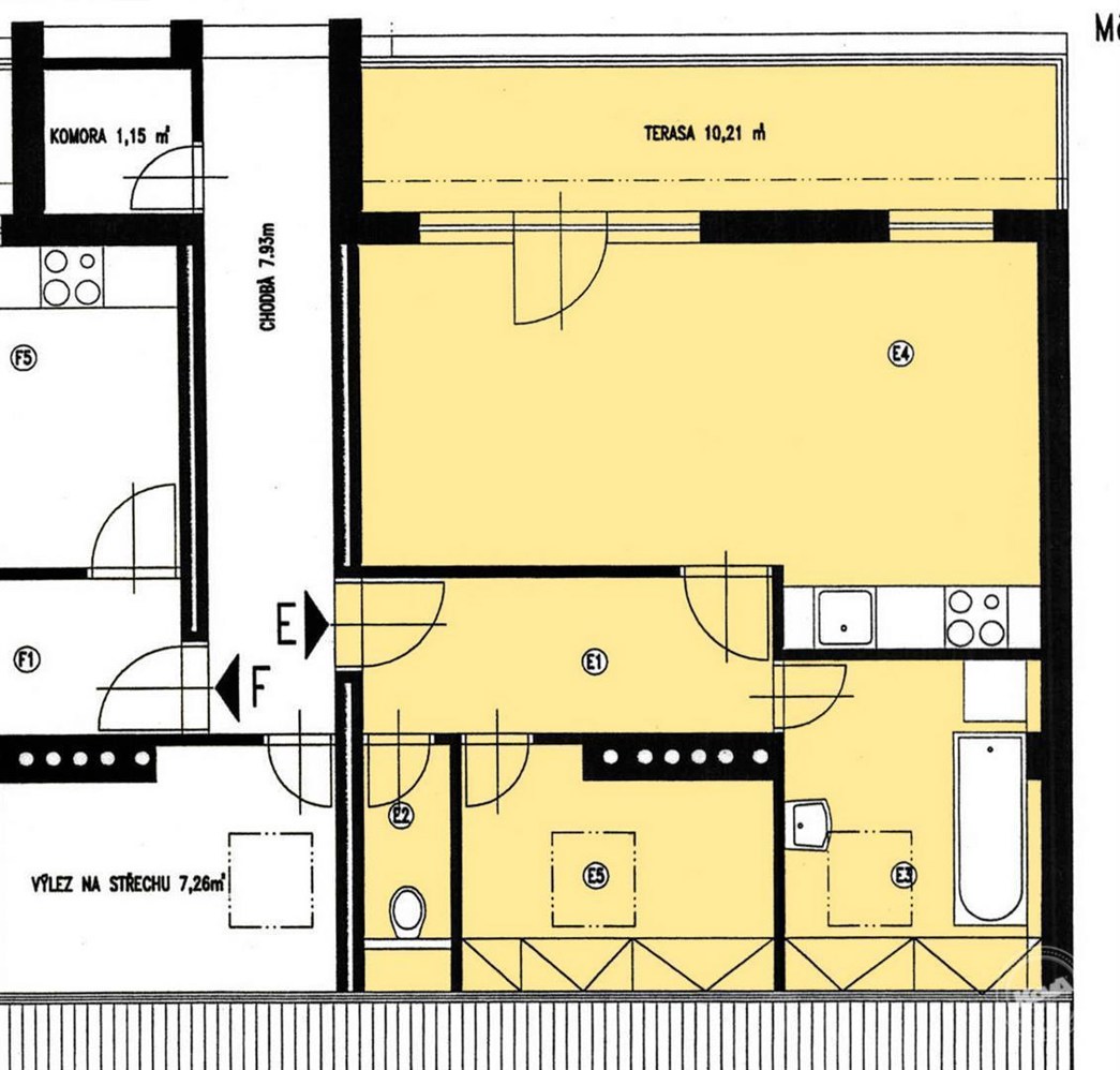
Velikost bytu 2+kk , 53,1 m2
Konstrukce domuCihla
Stav nemovitostiVelmi dobrý
Forma vlastnictvíOsobní
Patro6. patro z celkem 5 včetně 2 podzemních
TopeníÚstřední elektrické
ParkováníVenkovní veřejné
Infrastruktura v okolíŠkola, Školka, Nákupní centrum, Restaurace, Pošta, Místní úřad, Lékař, Kulturní zařízení
Dopravní dostupnostMHD
PENB třídaG - Mimořádně nehospodárná
Plochy
Užitná plocha53,1 m2
Obytná plocha42,9 m2
Plocha parcely 194 m2
Terasa10,2 m2
Zahrada 194 m2
Inženýrské Sítě
Elektřina230/400 V
VodaVodovod
PlynZaveden
Připojení na internetADSL
Zobrazit na mapě
Zobrazit na mapě
Cena
Cena
Info v RK

Potřebujete si půjčit? Zařídíme vám výhodnou hypotéku

Více

Máte dotaz? Napište mi

Vaše osobní údaje využijeme pouze za účelem komunikace o zaslané nabídce. Nebudeme vám zasílat newsletter ani vaše údaje nepředáme třetím stranám.
Více o ochraně osobních údajů zde.

zrušit

Nenašli jsme žádné výsledky

Vámi zadaný výraz neodpovídá žádný záznam. Zkuste pozměnit svůj hledaný výraz.