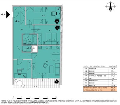
Praha 4 - Háje, prodej nového bytu, 4+kk/T/GS, 107 m2 (č. 4.4) s výhledem do zeleně

Praha 11, Háje, ul. Steinerova
Info v RK

Prodej nového bytu 4+kk, 102 m2 s lodžií, sklepem a garážovým stáním v projektu Steinerova, v Praze 4 - Háje. Objekt se nachází pouhých 5 minut chůze od stanice metra C - Háje. Lokalita s vynikající dopravní dostupností nabízející dostatek klidu, občanskou vybavenost a možnosti rekreačního vyžití v nedalekém Kunratickém a Hostivařském lesoparku, Průhonickém parku a Milíčovském lese. Cena uvedena bez DPH 14 %. K bytu náleží garážové stání a sklepní kóje.

Nabídka
Nabídka
Číslo zakázkyKB008643
Druh zakázkyProdej
Stav zakázkyZrealizováno
Aktualizace29.11.2017
Parametry
Parametry
Nemovitost
Velikost bytu 4+kk , 102 m2
Konstrukce domuCihla
Stav nemovitostiNovostavba
Forma vlastnictvíOsobní
Patro3. patro z celkem 12 včetně 3 podzemních
TopeníVeřejné ústřední
ParkováníGaráž
Počet parkovacích míst1
Infrastruktura v okolíŠkola, Školka, Nákupní centrum, Restaurace, Pošta, Místní úřad, Lékař, Kulturní zařízení, Koupaliště
Dopravní dostupnostMHD, Dálnice, Metro
PENB třídaG - Mimořádně nehospodárná
Plochy
Užitná plocha 102 m2
Obytná plocha89,77 m2
Lodžie11,93 m2
Sklep4,73 m2
Inženýrské Sítě
Elektřina230/400 V
VodaVodovod
KanalizaceMěstská
Připojení na internetKabelové
Zobrazit na mapě
Zobrazit na mapě
Cena
Cena
Info v RK

Potřebujete si půjčit? Zařídíme vám výhodnou hypotéku

Více

Máte dotaz? Napište mi

Vaše osobní údaje využijeme pouze za účelem komunikace o zaslané nabídce. Nebudeme vám zasílat newsletter ani vaše údaje nepředáme třetím stranám.
Více o ochraně osobních údajů zde.

zrušit

Nenašli jsme žádné výsledky

Vámi zadaný výraz neodpovídá žádný záznam. Zkuste pozměnit svůj hledaný výraz.