Prodej bytu 4+1/L, Hloubětín, Praha 9

Praha 14, Hloubětín, ul. Kardašovská
9 390 000 Kč

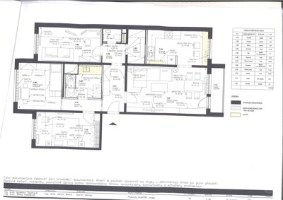
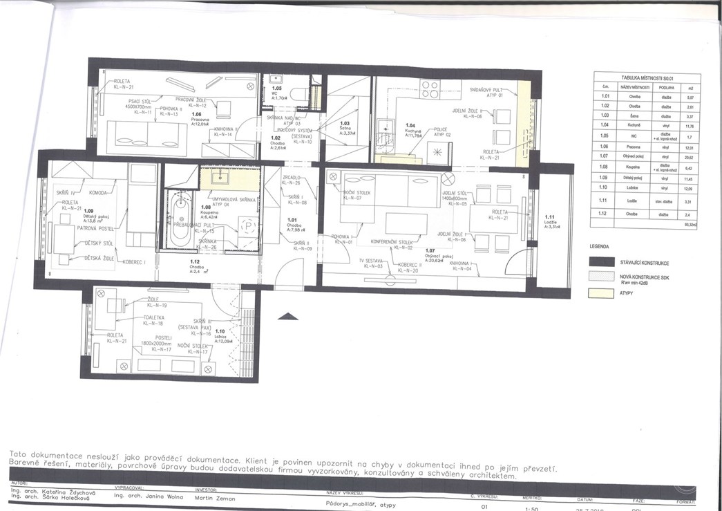
Nabízíme k prodeji světlý a prostorný byt 4+1 s užitnou plochou 97 m², který se nachází v prvním patře panelového domu na adrese Kardašovská 776/14, Hloubětín, Praha 9. Tento byt prošel kompletní rekonstrukcí a nabízí pohodlné bydlení v klidné části Prahy s vynikající dopravní dostupností.
Byt se skládá z prostorného obývacího pokoje, jehož jihovýchodní orientace zajišťuje dostatek denního světla, který má vstup na lodžii a je propojen s kuchyní. Zařízená kuchyně nabízí dostatek prostoru pro vaření a společné stolování. V bytě se dále nachází tři samostatné pokoje, které poskytují dostatečné soukromí pro všechny členy domácnosti. Koupelna s podlahovým vytápěním je kompletně vybavena, včetně přípravy pro pračku a sušičku. WC je řešeno jako samostatná místnost.
Velkou výhodou jsou také vestavěné skříně a samostatná komora.
Celková užitná plocha bytu činí 97 m², což zahrnuje i lodžii. Byt dále disponuje sklepem, což je praktické pro ukládání věcí, které nejsou denně potřeba.
Lokalita Hloubětín je velmi žádaná díky své kompletní občanské vybavenosti – v blízkosti se nachází školy, školky, pošta, obchody i restaurace. Pro milovníky sportu a rekreace jsou v okolí dostupné sportovní areály a zelené parky. Dopravní dostupnost do centra Prahy je vynikající – stanice metra Hloubětín je jen pár minut chůze od domu a zajišťuje rychlé spojení s ostatními částmi města.
Celková cena bytu je stanovena na 9 390 000 Kč s možností financování hypotečním úvěrem. Byt je k dispozici ihned a je vhodný jak pro osobní bydlení, tak jako investici k pronájmu s dobrou návratností. Energetická náročnost bytu je označena třídou E.
Tento byt představuje atraktivní nabídku pro každého, kdo hledá pohodlné bydlení v Praze s výbornou dostupností a kompletní občanskou vybaveností.

Nabídka
Nabídka
Číslo zakázky954389
Druh zakázkyProdej
Stav zakázkyZrealizováno
Aktualizace18.09.2025
Parametry
Parametry
Nemovitost
Velikost bytu 4+1 , 97 m2
Konstrukce domuPanel
Stav nemovitostiPo rekonstrukci
Forma vlastnictvíOsobní
Patro1. patro z celkem 3
TopeníVeřejné ústřední
ParkováníVenkovní veřejné
Dopravní dostupnostMetro, Auto, I. třída, Vlak, MHD
PENB třídaE - Nehospodárná
Plochy
Užitná plocha 97 m2
Obytná plocha 94 m2
Lodžie3,4 m2
Inženýrské Sítě
Elektřina230 V
VodaVodovod
KanalizaceMěstská
PlynZaveden
Zobrazit na mapě
Zobrazit na mapě
Cena
Cena
9 390 000 Kč

Měsíční poplatky: 9 711 Kč

Potřebujete si půjčit? Zařídíme vám výhodnou hypotéku

Více

Máte dotaz? Napište mi

Vaše osobní údaje využijeme pouze za účelem komunikace o zaslané nabídce. Nebudeme vám zasílat newsletter ani vaše údaje nepředáme třetím stranám.
Více o ochraně osobních údajů zde.

zrušit

Nenašli jsme žádné výsledky

Vámi zadaný výraz neodpovídá žádný záznam. Zkuste pozměnit svůj hledaný výraz.