Opakovaná dražba dvou činžovních domů v historickém centru města Cheb

Cheb, ul. Cechovní
2 400 000 Kč
Nejnižší podání

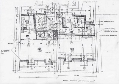
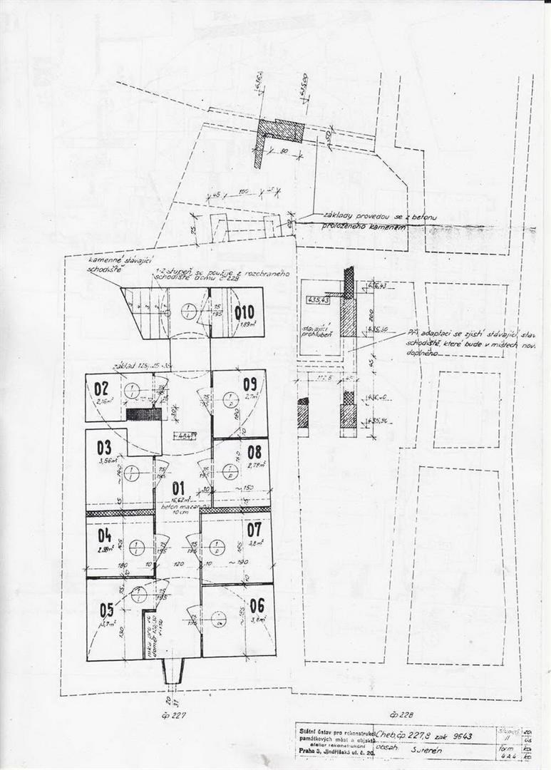
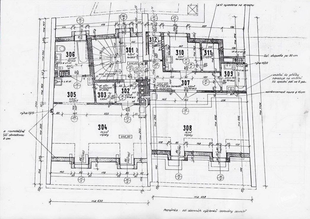
Dražby dvou ČD v historickém centrum města Cheb ulice Cechovní. Bytové domy jsou provozně i funkčně propojeny a lze na ně nahlížet jako na jednu stavbu. Jsou součástí řadové vnitřní historické zástavby centra města Cheb. Budova je v současné době užívána v prostorách 3. NP vlastníkem, kde je byt 2+1 vytápěn. Ostatní prostory v 3. NP a 2. NP a 1. NP nejsou vytápěny ani temperovány a jsou příležitostně užívány jako skladiště. Podkrovní byty nejsou uživatelné, jsou v havarijním stavu. Stáří budov lze pouze odhadnout na cca rok 1800. V roce 1962 budovy prošly rekonstrukcí, kde část domu do dvora byla pravděpodobně ubourána, bylo provedeno funkční i provozní propojení, byla provedena změna vnitřní dispozice. V roce 1994 byl dům vyklizen, následně v roce 2000 prošel částečnou rekonstrukcí vnitřku suterénu, přízemí, 2.NP a 3.NP. Podkroví zůstalo ve stavu ze 60. let minulého století. Dražba z insolvenčního řízení je nejbezpečnější způsob nabytí majetku, veškeré omezení zapsaná v katastru zanikají. Pro více informací kontaktujte makléře.

Nabídka
Nabídka
Číslo zakázkyKC011626
Druh zakázkyDražba
Stav zakázkyZrealizováno
Aktualizace11.02.2021
Dražba
Dražba
Druh dražbyDobrovolná
Datum dražby 22. 10. 2020  10:00
Místo dražby www.jrdrazby.cz
Termín první prohlídky 14. 10. 2020  15:00
Termín druhé prohlídky 19. 10. 2020  10:00
Vyvolávací cena 2 400 000 Kč
Znalecký posudek 3 600 000 Kč
Minimální příhoz 10 000 Kč
Jistina 300 000 Kč
Parametry
Parametry
Nemovitost
Konstrukce domuSmíšená
Stav nemovitostiŠpatný
Forma vlastnictvíOsobní
TopeníÚstřední palivové
ParkováníVenkovní vyhrazené, Venkovní veřejné
Infrastruktura v okolíŠkola, Školka, Nákupní centrum, Restaurace, Pošta, Místní úřad, Lékař, Kulturní zařízení
Dopravní dostupnostAuto
PENB třídaG - Mimořádně nehospodárná
Plochy
Užitná plocha 366 m2
Obytná plocha 262 m2
Zastavěná plocha 134 m2
Plocha parcely 167 m2
Sklep 80 m2
Inženýrské Sítě
Elektřina230/400 V
VodaVodovod
KanalizaceMěstská
PlynZaveden
Zobrazit na mapě
Zobrazit na mapě
Cena
Cena
2 400 000 Kč
Nejnižší podání

zrušit

Nenašli jsme žádné výsledky

Vámi zadaný výraz neodpovídá žádný záznam. Zkuste pozměnit svůj hledaný výraz.